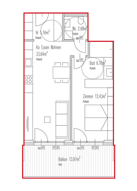
Top 05 | 1. Obergeschoss
Neuwertige 2-Zimmer-Mietwohnung in Innsbruck / Kranebitten
Ab 01.02.2026 zur Miete verfügbar!
– sonnige 2-Zimmer Wohnung im 1. Obergeschoss, Ausrichtung süd
– großer Eingangsbereich mit Garderobe
– Echtholzfußboden mit Fußbodenheizung
– Wohn/Essbereich südseitig ausgerichtet
– moderne, maßgefertigte Küche
– geräumiges, offenes Bad mit Doppelwaschbecken und Dusche
– separates WC
– direkter Zugang zum gedeckten Balkon von jedem Zimmer
– Tiefgaragenplatz mit E-Mobilitätsanschluss
– Kellerabteil
Kosten
Wohnung
Miete
BK netto ca.
UST
Gesamt brutto
TG-Stellplatz
Miete netto
BK netto ca.
UST
Gesamt brutto
Kaution
€ 810,–
€ 200,–
€ 105,–
€ 1.115,–
€ 90,–
€ 25,–
€ 23,–
€ 138,–
€ 3.756,–
Energie
HWB (kWh/m2a)
HWB-Klasse
0,70
40.00
Merkmale
Wohnfläche
Balkon
Kellerabteil
Baujahr
Verfügbar ab
50,10 m2
13,97 m2
4,53 m2
2021
1. Februar 2026
Ausstattung
Zimmer
Badezimmer
Beheizung
Keller
Personenaufzug
Garagenstellplatz
2
1
Gas
Ja
Ja
TG 5
Grundriss


Garagen-stellplatz
und Kellerabteil

Klammstrasse 33,
6020 Innsbruck / Kranebitten

















